de houde tand | der hölzerne zahn

 

Der Text beschreibt zunächst den Begriff „gezellig“, der ein zentraler Bestandteil der niederländischen Identität ist und ein Gefühl der Gemütlichkeit und des Zusammenhalts vermittelt. Sowohl als individuelles als auch als gruppenorientiertes Konzept spiegelt „gezellig“ das Gefühl von Geborgenheit wider, sei es in der eigenen Umgebung oder in der Interaktion mit anderen Menschen.

Der Fokus liegt auf dem Kloster Hoogcruts in den Niederlanden, das im Laufe der Zeit verschiedene Phasen der Nutzung durchlaufen hat. Ursprünglich eine kleine Kapelle, wurde es später zu einer Schule mit Internat umgebaut und diente sogar als regionale Bank. Nach Brandstiftungen und verschiedenen Nutzungsphasen verfiel das Kloster zu einer Ruine, bis die Stiftung Limburgs Landschap begann, es in kleinen Teilen wiederherzustellen.

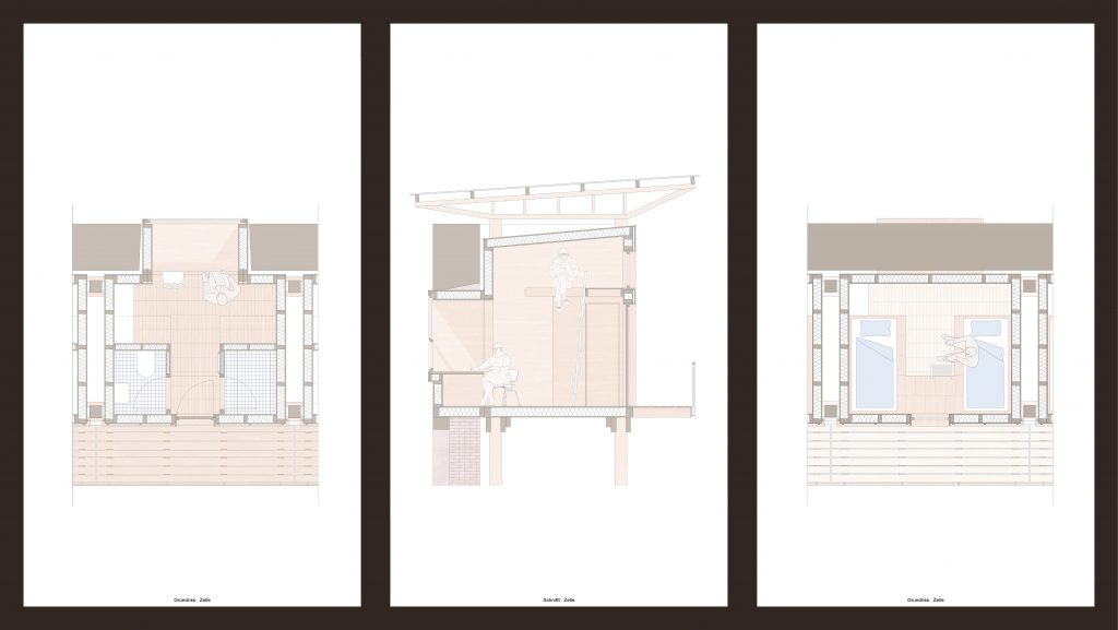
Der Entwurf namens „De Houde Tand“ für das Kloster zielt darauf ab, es in einen multifunktionalen Veranstaltungsort mit Übernachtungsmöglichkeiten umzugestalten. Der Entwurf erstreckt sich über die Kapelle und umfasst den Parkplatz und den Innenhof. Die Kapelle wird in drei horizontale Ebenen unterteilt: Die unteren Ebenen dienen als Hauptveranstaltungsräume für Konzerte, Ausstellungen und mehr, während die obere Ebene als Galerie gestaltet ist. Zusätzlich befinden sich entlang der Kapellenwände Wohnboxen für zwei Personen, die Übernachtungsmöglichkeiten bieten. Ein fliegendes Dach soll die Kapelle vor Witterungseinflüssen schützen, und das gesamte Design besteht größtenteils aus Holz, das eine warme Atmosphäre schaffen soll.

Der Entwurf zeichnet sich durch eine hohe Vorfertigung aus, was die Montage vor Ort erleichtert und die Bauzeit verkürzt. Die Konstruktion bleibt unabhängig vom bestehenden Gebäude und kann zurückgebaut oder an anderen Orten wiederverwendet werden, was eine nachhaltige Lösung darstellt. Die Struktur des Entwurfs fördert verschiedene Arten von Interaktionen, sei es zwischen vielen Menschen bei Veranstaltungen oder zwischen einzelnen Personen und dem Ort selbst, der seine eigene Geschichte vermitteln möchte.

Der Klosterumbau soll nicht nur ein Ort für Veranstaltungen sein, sondern auch ein Ort des Zusammenkommens und der Erfahrung von „gezellig“. Durch die Vielseitigkeit des Entwurfs sollen sowohl Gruppeninteraktionen als auch individuelle Geborgenheit gefördert werden. Die Planung sieht vor, dass das Kloster als Ort für Workshops, Seminare und mehr genutzt werden kann, während es gleichzeitig einen Ort bietet, an dem Menschen die niederländische Identität des „gezellig“ erleben können.

Insgesamt ist der Entwurf „De Houde Tand“ nicht nur eine architektonische Lösung für die Wiederbelebung des Klosters, sondern auch ein kulturelles Projekt, das das Gefühl der Gemeinschaft und des Wohlbefindens in einer historischen Umgebung fördert.

 

Lehr- und Forschungsfeld Architekturtheorie | WS22/23

In Zusammenarbeit mit     Johannes Bergerfurth