exhibition pavilion
The task was to design a pavilion for a community in the Eifel. This is to be used for temporary exhibitions about the forest as a natural habitat and the use of wood.
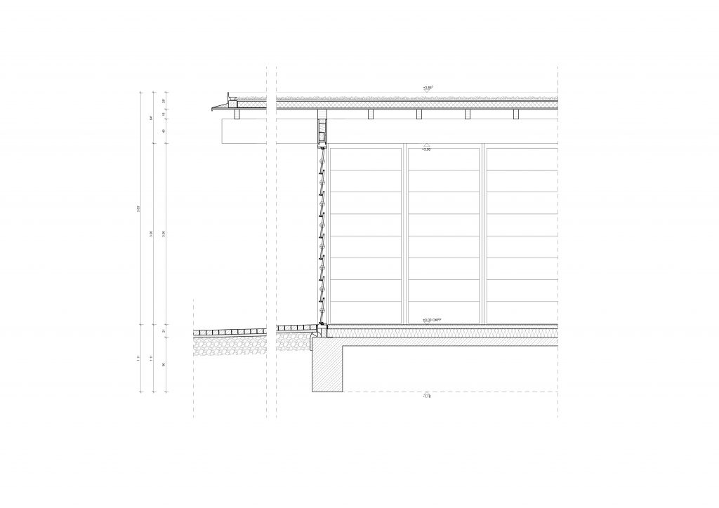
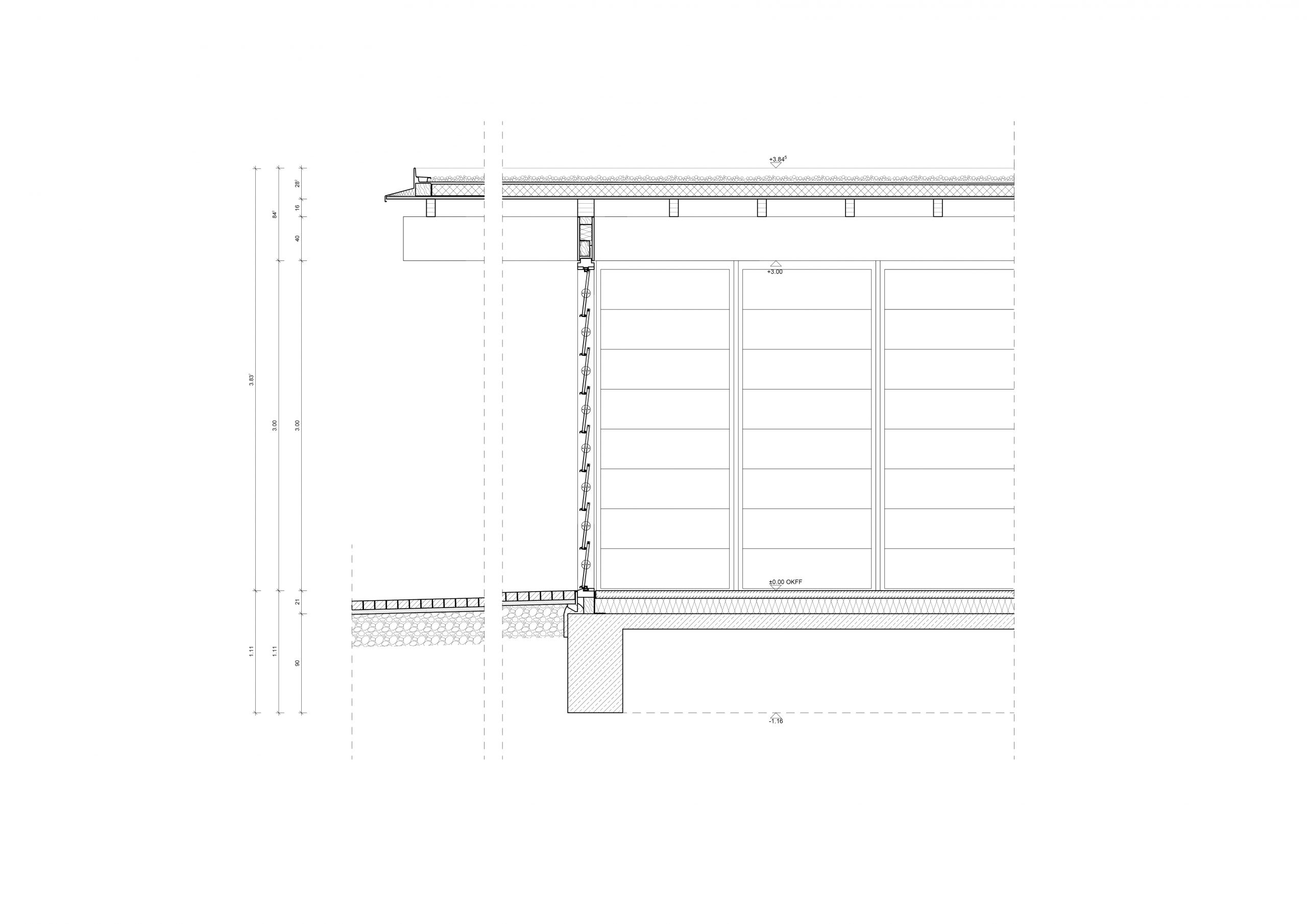
The design is a column-free space to allow different exhibitions. A timber tong construction was chosen to span the space while forming an inviting canopy. Prefabricated wall elements enclose the space and alternate between window element or closed element in the facade.
Chair of Structural Design | WS19/20
In collaboration with Marie Becker | Johannes Bergerfurth | Jingli Luo | Tina Rahmani | Amelie Weber








